
budite informisani o našem kreativnom radu...
see sound

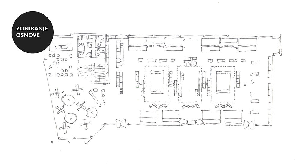
TEHNOMANIJA
location: Agostina Neta, New Belgrade, Serbia
year: 2018.
projec type: tech store
area: 2000 sq. m.
PROJECT DETAILS












EXTRA




PROJECT REALIZATION
BUILDING INFO
The new Tehnomanija store is one of the biggest technology stores in this part of Europe.
In an environment full of exclusive business and residential buildings in Belgrade.
It extends over 2000 square meters, in a two-level building with more than 50 secured parking spaces
The new store expects your excellent offer of the best quality brand technics, as well as a new, innovative way of presenting products to customers.
In the exclusive new store, more than 50 brands of home appliances, 180 brands from IT products, more than 70 brands of small home appliances, over 50 brands of phones, more than 50 brands of TVs in AV equipment have been presented.
VIDEO
https://www.youtube.com/watch?v=U2A-eeKPYjw

OTHER projectS










































